Pentassuglia festeggia. 5 milioni per piazza Mario Pagano e l’ospedale resta di primo livello
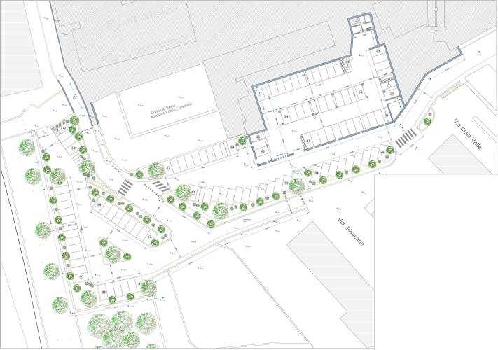
5 milioni di euro per riqualificare piazza Mario Pagano. Lo ha detto il consigliere regionale Donato Pentassuglia, che ha annunciato l’approvazione della delibera CIPE, che finanzia il progetto di riqualificazione di Piazza Mario Pagano per un importo pari a €4.700.000, con i quali saranno realizzati un parcheggio interrato, uno a raso e un’area a verde, valorizzando così piazza Mario Pagano e ridando lustro all’intero quartiere San Francesco.
Non è la sola buona notizia scaturita nel corso di una conferenza stampa tenutasi ieri, visto che in virtù di una delibera della Giunta regionale (stavolta non ci dovrebbero essere retromarce) l’ospedale di Marina resterà di primo livello.
Immediata la soddisfazione del locale circolo PD. “Tale risultato è il frutto del meticoloso e caparbio lavoro portato avanti dal consigliere regionale Donato Pentassuglia che, con costante e lungimirante visione della Città, coadiuvato dai dirigenti del Partito Democratico, ha saputo intercettare il quarto finanziamento CIPE, dopo quelli ottenuti per la realizzazione della SP 58, e dei parcheggi di via Bellini e via Pietro del Tocco. Il Partito Democratico è soddisfatto per la decisione di confermare il presidio ospedaliero di Martina Franca come Ospedale di I° livello, a servizio della intera Valle d’Itria, con tutte le branche e gli ambulatori già esistenti, nonché quelli di nuova istituzione. Sono stati confermati tra l’altro, tutti gli investimenti già in corso e quelli per la rianimazione, i cui adempimenti burocratici sono ormai in via di definizione”.
Ora spetterà al Comune approvare entro fine anno il progetto definitivo per poter chiudere tutte le procedure di gara appaltando l’opera nel 2017 e dotando così la città di un’opera strategica.



